google-site-verification=XtUlRYQfZ7Q-G3uaBPjzCP-LsCrRDyK5qgaks8Tn7Xk

Thatched historic property

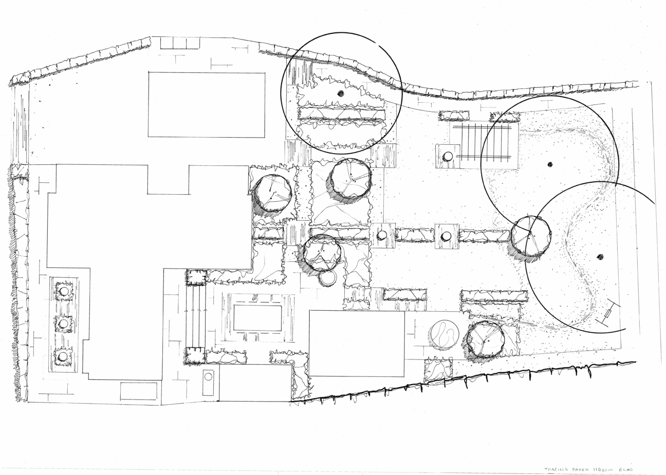
We were asked to redesign the gardens for a listed thatched property in a picturesque village in the Cambridge countryside. The existing garden was mostly laid to lawn with a couple of small paved areas, and out clients wanted a contemporary cottage-style garden that would fit with the property more cohesively, while creating spaces for their young family to enjoy.

We designed the garden to be a series of spaces, laid out to create a journey around the garden. A re-organised split level paved terrace and generous steps lead you down from the house to the main outdoor dining area complete with inset clay pavers, a water feature, and planting to create interest year round.

Miscanthus ‘hedges’ serve to break the space up into ‘rooms’ made up of paved areas, lawns or planting beds, always ensuring that there is something interesting to look at, or a view to enjoy.